Cottage and Development Opportunity - Village Location - Husbands Bosworth, Leics (LE17)
Ribbon Cottage, 5 Green Lane, Lutterworth, LE17 6LD
- 1
Key features
Guide Price: *
£290,000
Fees apply
Reservation fee:£10,000.80
All fees include VAT at 20%
Auction Type:
† Conditional
Sold for:
£290,000Bid history
1 bidC
02/12/2024 11:42:29 - £290,000
UNIQUE DEVELOPMENT OPPORTUNITIES OF THIS NATURE ARE RARELY AVAILABLE SO WE WOULD RECOMMEND AN EARLY VIEWING.
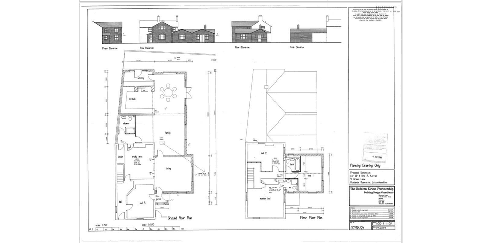
Situated towards the end of a quiet lane in this popular village is this period detached cottage. The property sits on a plot of approximately one third of an acre and planning permission has already been granted for a two storey extension to the front and single storey extension to the side. Large rear walled garden with further potential for re-development of the remainder of the site, subject to planning permission. (Further details are within the Documents section)
Entrance Hall - Accessed via opaque leaded double glazed front door. Quarry tiled flooring. Double glazed window. Exposed period timber ceiling beam. Wall light. Stairs rising to the first floor. Radiator. Doors to rooms.
Lounge - 4.29m x 3.40m (14'1" x 11'2") - Double glazed window and further sash window. Feature recessed open brick constructed fireplace. Exposed heavy timbers. Four wall lights. Radiator.
Kitchen/Breakfast Room - 4.34m x 3.73m (14'3" x 12'3") - Farmhouse style kitchen with sash window and glazed patio doors opening out to the garden. Fitted base unit and laminated work surface. Fitted double oven and four ring electric hob. Stainless steel one and a half sink and drainer. Two wall lights. Fitted open shelving. Radiator. Doorway to:-
(Kitchen/Breakfast Room Photo Two) -
Utility - 3.35m x 1.24m (11'0" x 4'1") - Space for washing machine and tumble dryer. Window.
First Floor Landing - Timber balustrade. Doors to rooms.
Bedroom One - 4.78m x 4.60m (15'8" x 15'1") - This was originally two bedrooms and could be converted back relatively easily. Dual aspect windows. Two radiators. Access to loft space. Fitted shelving.
Bedroom Two - 4.42m x 2.84m (14'6" x 9'4") - Sash window. Radiator.
(Bedroom Two Photo Two) -
Bathroom - Panelled bath with electric shower fitment over. Pedestal wash hand basin. Low level WC. Airing cupboard housing lagged hot water tank. Complementary tiling. Radiator. Opaque double glazed window.
Outside - The total plot extends to approximately one third of an acre and is currently uncultivated and enclosed by a combination of high brick wall, fencing and hedging with secure gated access. Planning permission has been granted for a two storey extension to the front of the house and a further single storey extension to the side (plans attached). Bearing in mind the size and nature of the site we believe there is scope for further development, subject to planning permission.
Garage - Brick constructed double garage with two up and over doors.
The buyer agrees to pay a non refundable reservation fee of £10,000 including VAT, payable immediately at the end of the auction, payable in addition to the purchase price.
UNIQUE DEVELOPMENT OPPORTUNITIES OF THIS NATURE ARE RARELY AVAILABLE SO WE WOULD RECOMMEND AN EARLY VIEWING.
Situated towards the end of a quiet lane in this popular village is this period detached cottage. The property sits on a plot of approximately one third of an acre and planning permission has already been granted for a two storey extension to the front and single storey extension to the side. Large rear walled garden with further potential for re-development of the remainder of the site, subject to planning permission. (Further details are within the Documents section)
Entrance Hall - Accessed via opaque leaded double glazed front door. Quarry tiled flooring. Double glazed window. Exposed period timber ceiling beam. Wall light. Stairs rising to the first floor. Radiator. Doors to rooms.
Lounge - 4.29m x 3.40m (14'1" x 11'2") - Double glazed window and further sash window. Feature recessed open brick constructed fireplace. Exposed heavy timbers. Four wall lights. Radiator.
Kitchen/Breakfast Room - 4.34m x 3.73m (14'3" x 12'3") - Farmhouse style kitchen with sash window and glazed patio doors opening out to the garden. Fitted base unit and laminated work surface. Fitted double oven and four ring electric hob. Stainless steel one and a half sink and drainer. Two wall lights. Fitted open shelving. Radiator. Doorway to:-
(Kitchen/Breakfast Room Photo Two) -
Utility - 3.35m x 1.24m (11'0" x 4'1") - Space for washing machine and tumble dryer. Window.
First Floor Landing - Timber balustrade. Doors to rooms.
Bedroom One - 4.78m x 4.60m (15'8" x 15'1") - This was originally two bedrooms and could be converted back relatively easily. Dual aspect windows. Two radiators. Access to loft space. Fitted shelving.
Bedroom Two - 4.42m x 2.84m (14'6" x 9'4") - Sash window. Radiator.
(Bedroom Two Photo Two) -
Bathroom - Panelled bath with electric shower fitment over. Pedestal wash hand basin. Low level WC. Airing cupboard housing lagged hot water tank. Complementary tiling. Radiator. Opaque double glazed window.
Outside - The total plot extends to approximately one third of an acre and is currently uncultivated and enclosed by a combination of high brick wall, fencing and hedging with secure gated access. Planning permission has been granted for a two storey extension to the front of the house and a further single storey extension to the side (plans attached). Bearing in mind the size and nature of the site we believe there is scope for further development, subject to planning permission.
Garage - Brick constructed double garage with two up and over doors.
The buyer agrees to pay a non refundable reservation fee of £10,000 including VAT, payable immediately at the end of the auction, payable in addition to the purchase price.
Summary
- Auction end
- 2nd Dec at 11:46
- Property type
- Residential
- Tenure
- Freehold
- Bedrooms
- 2
- Bathrooms
- -
- Council tax band
- G
Guide Price: *
£290,000
Fees apply
Reservation fee:£10,000.80
All fees include VAT at 20%
Auction Type:
† Conditional
Sold for:
£290,000Bid history
1 bidC
02/12/2024 11:42:29 - £290,000
Summary
- Auction end
- 2nd Dec at 11:46
- Property type
- Residential
- Tenure
- Freehold
- Bedrooms
- 2
- Bathrooms
- -
- Council tax band
- G
This property is being sold by:

Rocket Auctions
02081642892
†Conditional auction
If the reserve is met or exceeded and the auction timer reaches zero, an exclusivity period begins in relation to that property. The successful bidder is contractually required to exchange on the property on or before the expiry of 20 working days from the end of the auction (unless otherwise stated in the "Other Key Info" section in the listing above). All properties sold by conditional auction are sold subject to a reservation fee which is clearly stated in the terms and conditions attached to the property and in the bidding box before a bid is placed. The reservation fee is payable in addition to the final purchase price and is received on a non-refundable basis, subject to the terms of the Reservation Agreement. To ensure that the successful bidder proceeds, the winning buyer is automatically charged a reservation fee and agrees prior to making their bid, to pay any outstanding amount of the property reservation fee immediately at the end of the auction. The auctioneer will be authorised to sign the reservation agreement on both the buyer’s and seller’s behalf. If by the seller’s act, exchange does not occur on or before the expiry of 20 working days from the end of the auction (unless otherwise stated in the "Other Key Info" section in the listing above), the reservation fee shall be fully refunded to the buyer. If the buyer fails to exchange on or before the expiry of 20 working days from the end of the auction (unless otherwise stated in the "Other Key Info" section in the listing above), they will forfeit the full amount of the reservation fee.Fees paid to the Auctioneer may be considered as part of the chargeable consideration for the property and be included in the calculation for stamp duty liability. Further clarification on this must be sought from your legal representative.
* Pricing Information
The Guide Price amount specified is an indication of each seller's minimum expectation. It is not necessarily the amount at which the property will sell. Each property will be offered subject to a Reserve (a figure below which the property will not be sold) which we expect will be set no more than 10% above the Guide Price amount.
Bamboo Proptech and Rocket Auctions shall not be liable for any inaccuracies in the fees stated on this description page, in the bidding confirmation pop up or in the particulars. Buyers should check the contents of the legal pack and special conditions for accurate information on fees. Where there is a conflict between the fees stated in the particulars, the bid information box above or the bidding confirmation pop up and the contents of the legal pack, the contents of the legal pack shall prevail.
Stamp Duty Land Tax or Land and Buildings Transaction Tax may also apply in some circumstances.
Refreshing the Page
To make sure that you are seeing the latest information for the property, we recommend you refresh the page. This ensures you're seeing live information and not stored (cached) data. If the page disconnects from the Internet, refreshing the page will show the latest information.
Disclaimer
All information relating to this property, including descriptions, pictures and other related information has been provided by Rocket Auctions. All legal documents in relation to this property have been provided by the Vendor's solicitor. Neither Bamboo Proptech or any individual in employment with Bamboo Proptech makes any warranty as to the accuracy or completeness of any of the property information.
These particulars do not form part of any contract or offer. Buyers should not rely on them as statements of representation and should check that the information is correct by inspection or otherwise. Where there is a conflict between the contents of the legal documents and these particulars, the information contained in the legal documents shall prevail.
Pursuant to the Auctioneer Act 1845, this auction is being conducted by the auctioneer stated above. All participants in this online auction shall note that both the Auctions (Bidding Agreements) Act 1927 and 1969 shall apply.
Where stated in the bid box above, you agree that Bamboo may pre-authorise your card for the amount of the Buyer's fee and Deposit. You will only be charged if you are the winning buyer. We will release the pre-authorisation at the end of the auction. You card issuer may take up to 10 working days for this amount to be available to you in your account.